Choose Your Language|中文|ENGLISH|

Jiangsu FUAO Elevator Co., Ltd.

images
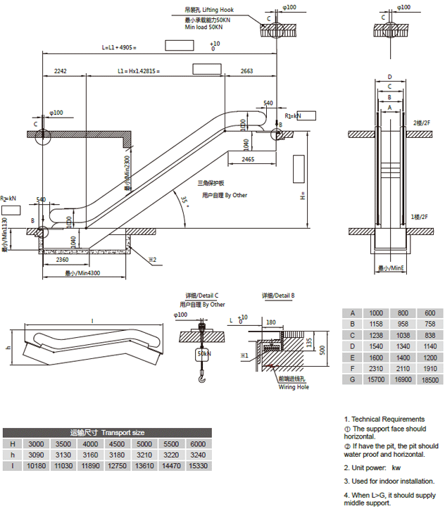
Escalator (Ⅱ)
Commercial 35 Degree
fuao

www.fuaoelevator.com
© 2012 Jiangsu FUAO Elevator Co., Ltd.

Quick links Optional Functions>> Product Introduction>> Elevator Decoration>>
Our Products Elevator>> Escalator>> Autowalk>>