Choose Your Language|中文|ENGLISH|
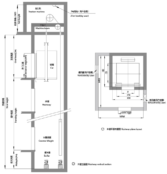
MR Passenger Elevator
MRL Passenger Elevator
Panoramic Elevator
Bed Elevator
Freight Elevator
Home Lift
Dumbwaiter
Escalator (Ⅰ)
Escalator (Ⅱ)
Passenger Conveyor (Ⅰ)
Passenger Conveyor (Ⅱ)
Car Parking System
Qualification Honor
Contact Us
www.fuaoelevator.com © 2012 Jiangsu FUAO Elevator Co., Ltd.