选择语言|中文|ENGLISH|

江苏富奥电梯有限公司

images
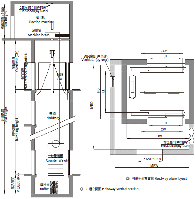
载货电梯
THJ AC Elevator
fuaofuao

www.fuaoelevator.com
© 2012 江苏富奥电梯有限公司

快速链接 可选功能>> 产品介绍>> 电梯装饰>>
公司产品 电梯>> 自动扶梯>> 自动人行道>>